2022年全国职业院校技能大赛中职组 建筑CAD赛项模拟赛题(word版)
展开任务书
竞 赛 须 知
1.本竞赛环节总分1000 分,竞赛时间 210 分钟。
2.文件夹命名要求:每个参赛队在 A机位的D盘根目录下新建文件夹,文件夹以机位号命名,A机位是队长机位,为成果提交机位。例如,参赛队(302A和302B)即赛区号为“3”,机位组号为“02”,文件夹名称为“302”。
3.本次竞赛所有任务由参赛队协作共同完成一份任务,文件必须保存在上述文件夹中,否则以未做任务处理。
4.文件命名要求:必须按各任务要求正确命名文件名称。
5.选手设置的文件夹名称和各竞赛任务的文件名称不符上述要求的,其内容不能作为比赛正式结果,不作为评分依据。
6.在规定时间内完成即可,提前完成竞赛任务不加分。
7.为减少因突发情况造成的损失,竞赛过程中请选手注意手动保存竞赛结果,也可自行设置软件自动保存的时间。
8.遇到意外情况,应及时向裁判报告,听从裁判安排,不要自行处理。经现场裁判及技术支持人员鉴定,非人为原因造成的电脑及软件死机,加时不超过 10 分钟。所加时间从选手提出报告开始计时。
9.选手在提交竞赛结果前,务必检查文件夹和文件的名称是否正确,赛场提供的所有纸质材料不得带出赛场,离开赛场时不要关闭电脑。
10.不能在上交文件中明示或暗示选手身份,不得有雷同卷,否则按作弊处理。
任务一 创建样板文件(60分)
设置文字样式
设置两个文字样式,分别用于“汉字”和“数字和字母”的注释,所有字体均为直体字,宽度因子为0.7。
用于“汉字”的文字样式
文字样式命名为“HZ”,字体名选择“仿宋”,语言为“CHINESE_GB2312”。
用于“数字和字母”的文字样式
文字样式命名为“XT”,字体名选择“simplex.shx”,大字体选择“HZTXT”。
设置尺寸标注样式
尺寸标注样式名为“BZ”,其中文字样式用“XT”,其他参数请根据国标的相关要求进行设置。
创建布局
(1)新建布局并更名为“PDF-A3”(大写)。
(2)打印设置:配置打印机/绘图仪名称为DWG TO PDF.pc5;纸张幅面为A3、横向;可打印区域页边距设置为0,采用单色打印,打印比例为1:1。
在布局“PDF-A3”中按1:1比例绘制符合国标的A3横向图框。
绘制属性块标题栏
按图1-1所示的标题栏,在0层中绘制,不标注尺寸。
图1-1 标题栏定义属性
“(图名)”、“(文件夹名)”、“(SCALE)”和“(TH)”均为属性, 为属性字段(保存日期)。字高:“(图名)”为6,其余文字为4,所有属性和文字均在指定格内居中。
(2)将标题栏连同属性一起定义为块,块名为“BTL”,基点为标题栏右下角点。
(3)插入图块“BTL”于图框的右下角,分别将属性“(图名)”和“(文件夹名)”的值改为“基
本设置”和“文件夹的具体名称”(如“302”)。
样板文件的保存
保存文件名为“TASK01.dwt”的样板文件到指定文件夹中。
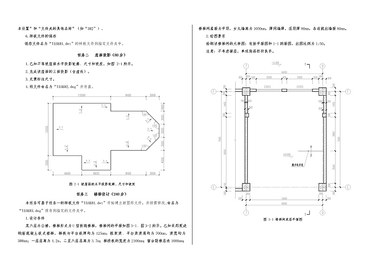
任务二 屋面投影(80分)
1.已知不等坡屋面水平投影轮廓、尺寸和坡度,如图 2-1所示。
2.完成该屋面的三面投影(含虚线)。
3.无需标注尺寸。
4.将文件命名为“TASK02.dwg”并存盘。
图 2-1 坡屋面的水平投影轮廓、尺寸和坡度
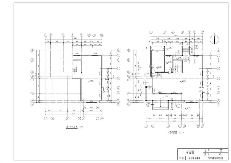
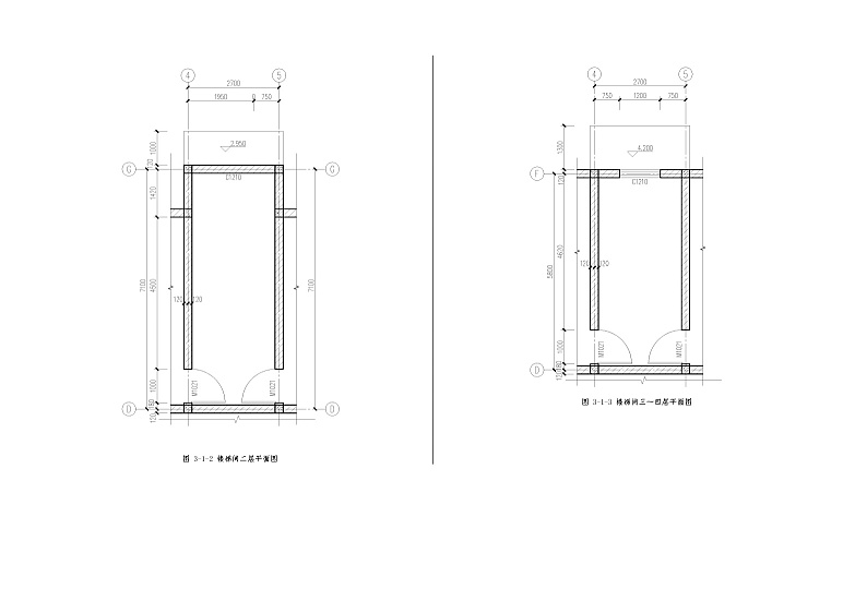
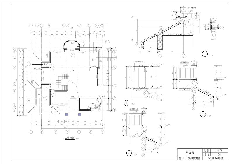
任务三 楼梯设计(240分)
本任务可基于任务一的样板文件“TASK01.dwt”开始建立新图形文件,并按需修改,命名为“TASK03.dwg”保存到指定的文件夹中。
1.设计条件
某局部五层旅馆采用敞开式自然采光楼梯间,楼梯间的平面如图3-1-1、图3-1-2所示。已知采用现浇钢筋混凝土双合板式楼梯,梯板与平台板厚均为100mm;框架梁梁高500mm,平台梁梁高350mm,梁宽同墙厚;首层层高为3.2m,二至四层层高均为3m,楼梯间顶层层高2.9m,楼梯间顶层通至上人屋面。窗台距楼层线600mm;楼梯间屋顶的女儿墙高为600mm,厚同墙厚,压顶厚80mm,各边挑出墙面80mm。
2.绘图要求
(1)绘制该楼梯间的大样图:包括平面图和1-1剖面图,出图比例为1:50(不考虑面层,单线简画栏杆扶手)。
(2)绘制楼梯栏杆详图,参见图3-2所示(引自15J403-1 B17页A7型)。出图比例为1:20和1:10。
图 3-1-1 楼梯间底层平面图
图 3-1-2 楼梯间顶层平面图
图3-2 楼梯栏杆扶手示意图
任务四 节点构造绘制(120分)
本任务可基于任务一的样板文件“TASK01.dwt”开始建立新图形文件,并按需修改,命名为“TASK04.dwg”保存到指定的文件夹中。
1.任务条件
已知某中心小学多层教学楼,为现浇钢筋混凝土不上人平屋面:结构屋面板厚120mm;屋顶设有管道伸出屋面,管径500mm,管道外壁需做保温;该屋面为结构找坡、正置式屋面,防水等级一级。
2.绘图要求
(1)绘制该管道穿屋面节点详图,出图比例1:5。
(2)除防水层可采用夸大画法以外,各构造层次应按实际尺寸绘制。
(3)填充图例应符合现行规范要求。
(4)构造层次参考资料见表4-1。
表4-1构造层次与材料
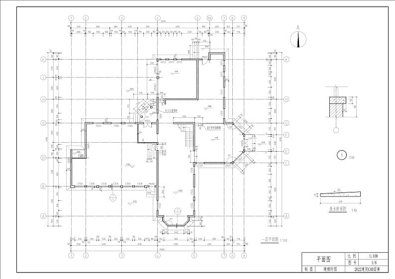
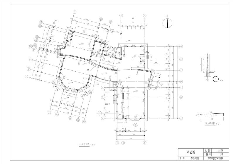
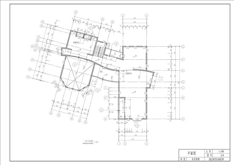
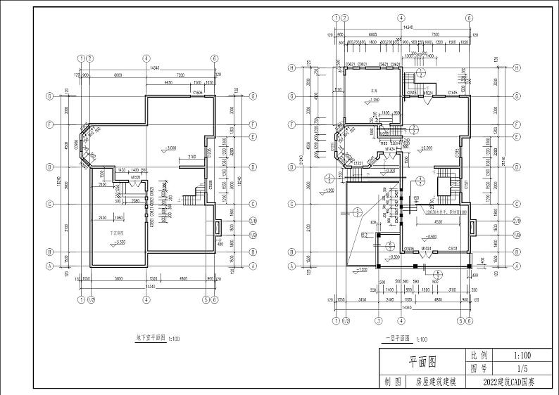
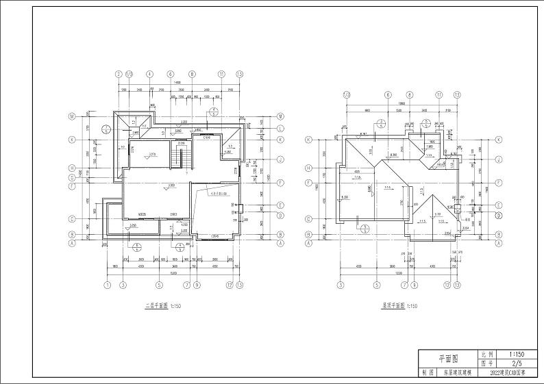
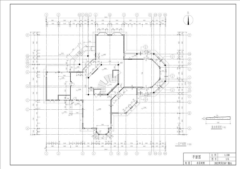
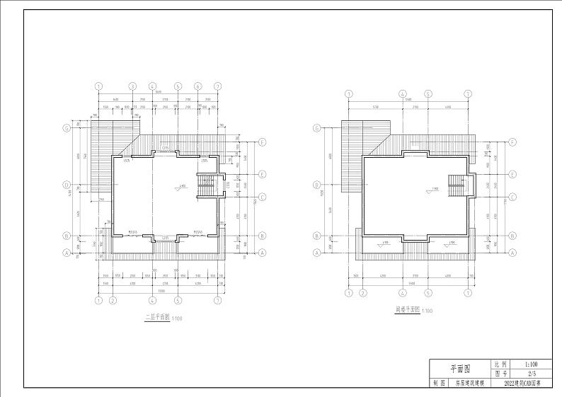
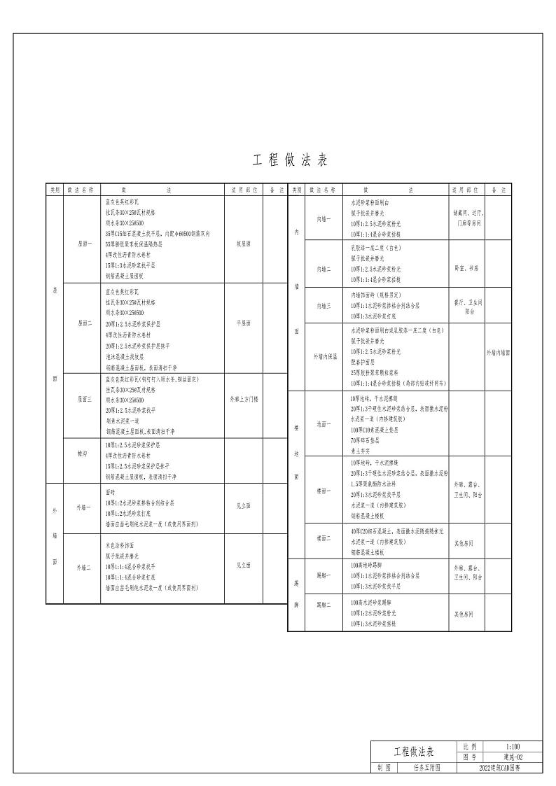
任务五 墙身详图绘制(200分)
本任务可基于任务一的样板文件“TASK01.dwt”开始建立新图形文件,并按需修改,命名为“TASK05.dwg”保存到指定的文件夹中。
1.绘图条件
已知某二层框架结构别墅(含地下室)及其构造做法,参见任务五附图。
2.绘制墙身详图
绘制指定位置的“墙身大样”图,墙身基本样式参见图5-1(结构不完整,仅供参考),出图比例为1:20。
注意:各构造层次无需用逐层写出文字,对照“工程做法表”简化标注,如图5-2所示的“内墙一”、“楼面一”和“顶棚一”。
图5-1墙身基本样式
图5-2构造层次简化标注
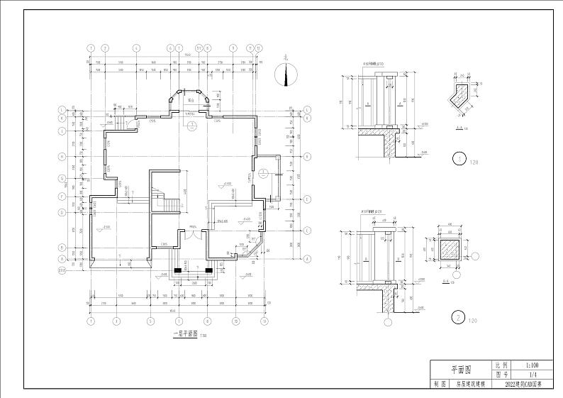
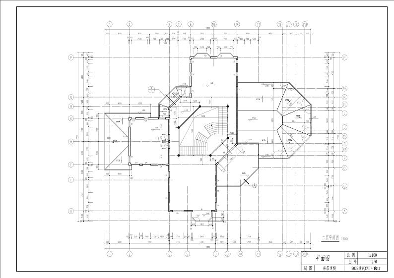
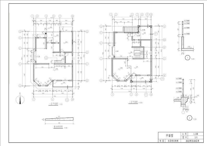
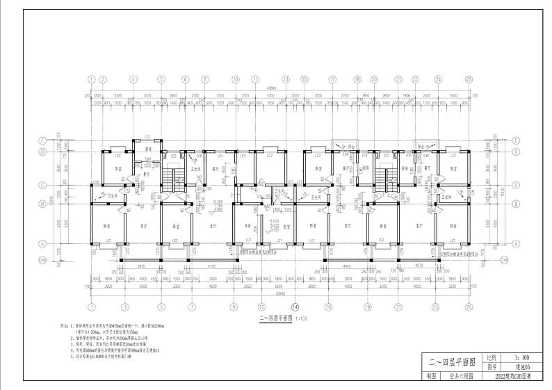
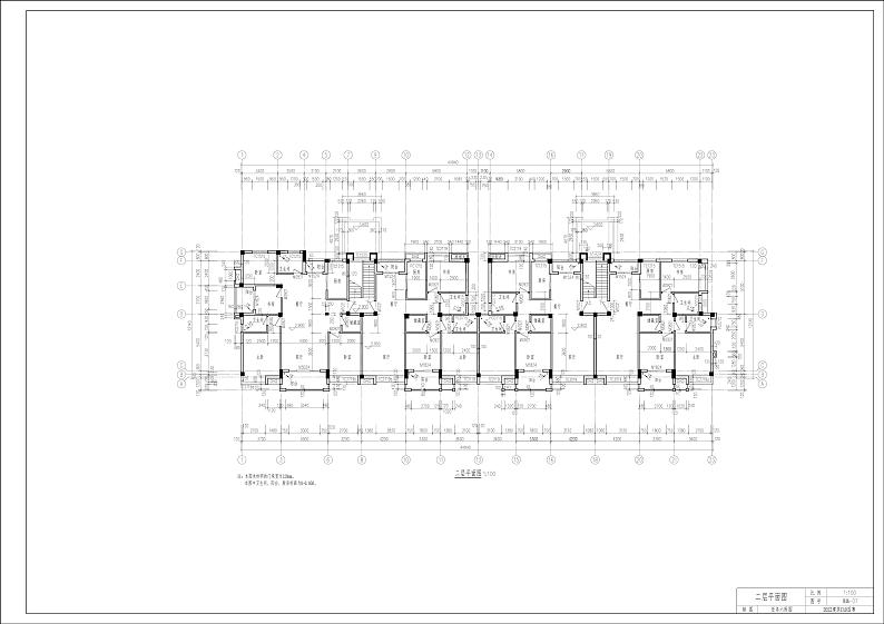
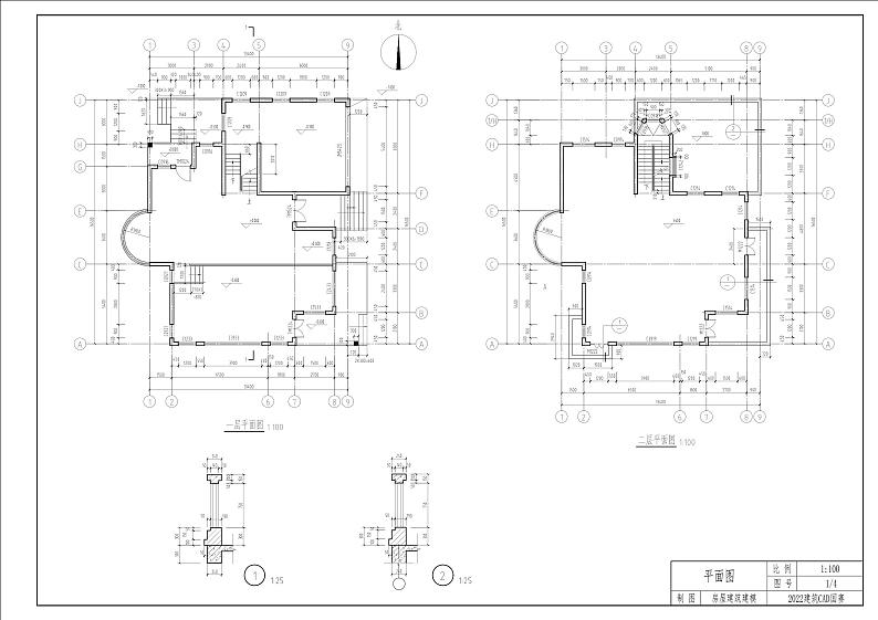
任务六 抄绘、改错、补绘建筑施工图(300分)
本任务可基于任务一的样板文件“TASK01.dwt”开始建立新图形文件,并按需修改,命名为“TASK06.dwg”保存到指定的文件夹中。本任务要求绘制的所有图形,均绘制在此 dwg 文件中。
1.绘图环境设置
(1)绘图环境设置主要包括:创建图层及其线型、文字样式、尺寸样式等。
(2)图层至少包括:轴线、墙体、门窗、楼梯踏步、散水坡道、标注、文字、填充等。图层颜色自定,图层线型和线宽应符合建筑制图国家标准要求。
2.模型空间 1:1 绘图
(1)抄绘“一层平面图”,并修正图纸中有误之处,见任务六附图。
(2)抄绘“南立面图”,见任务六附图。
(3)补绘“2-2剖面图”。
特别注意:图名及比例注写均绘制在布局空间。
3.图样布置与打印
(1)需设置3个A1图框布局,布局名称分别为“一层平面图”、“南立面图”、“2-2剖面图”。
(2)将“一层平面图”、“南立面图”、“2-2剖面图”按1:100出图比例分别布置在3个A1图框布局中,并锁定视口。
(3)打印布局“一层平面图”、“南立面图”、“2-2剖面图”为 PDF 文件,其文件名称与布局名一致,并保存到指定的文件夹中。
构造层次
可供选用的主要做法及材料
备注
结构
120厚现浇钢筋混凝土屋面板
φ500穿屋面管道
内径500mm
防水
3厚自粘聚合物改性沥青防水卷材(聚酯胎)
保温
30厚挤塑聚苯乙烯泡沫塑料板保温层
找坡
最薄30厚LC5.0轻集料混凝土2%找坡层
找平
1:2.5水泥砂浆找平层
厚度按最小构造要求设计
C20细石混凝土找平层
厚度按最小构造要求设计
5厚聚合物砂浆找平层
保护
防滑地砖
5厚聚合物砂浆保护层
20厚1:2.5水泥砂浆保护层
面层
20厚1:2.5水泥砂浆面层
其他
10厚低标号砂浆层
20厚聚合物砂浆层
憎水型膨胀珍珠岩板
不燃材料
4厚镀锌钢套管
耐碱玻纤网格布
-40×3铁箍、M8×30螺栓
3厚钢板圈
φ1.2镀锌铁丝
密封胶及嵌缝材料
2厚铝合金板
角钢
尺寸自定
M10×95胀锚螺栓
水泥钉、镀锌垫片
镀锌垫片尺寸:20mm×20mm×0.7mm
2022年全国职业院校技能大赛中职组 网络布线赛项模拟赛题(word版): 这是一份2022年全国职业院校技能大赛中职组 网络布线赛项模拟赛题(word版),文件包含2022网络布线-赛题1docx、2022网络布线-赛题10docx、2022网络布线-赛题2docx、2022网络布线-赛题3docx、2022网络布线-赛题4docx、2022网络布线-赛题5docx、2022网络布线-赛题6docx、2022网络布线-赛题7docx、2022网络布线-赛题8docx、2022网络布线-赛题9docx、2022网络布线赛项评分标准pdf等11份试卷配套教学资源,其中试卷共353页, 欢迎下载使用。
2022年全国职业院校技能大赛中职组 农机维修赛项模拟赛题(word版): 这是一份2022年全国职业院校技能大赛中职组 农机维修赛项模拟赛题(word版),共24页。试卷主要包含了未佩戴安全防护用品扣1分;,检查漏一项扣1分;,清洁漏一项扣1分,测量部位不正确每处扣1分;,测量方法不正确扣1分;,调整结果有误每项扣1分;,工具及零件脱手落地每次扣1分;,量具脱手落地每次扣2分;等内容,欢迎下载使用。
2022年全国职业院校技能大赛中职组 零部件测绘与CAD成图技术赛项模拟赛题(word版): 这是一份2022年全国职业院校技能大赛中职组 零部件测绘与CAD成图技术赛项模拟赛题(word版),文件包含M1-M2-竞赛任务书样题4docx、M1-M2-竞赛任务书样题7docx、M1-M2-竞赛任务书样题9docx、M1-M2-竞赛任务书样题1docx、M1-M2-竞赛任务书样题10docx、M1-M2-竞赛任务书样题2docx、M1-M2-竞赛任务书样题3docx、M1-M2-竞赛任务书样题8docx、M1-M2-竞赛任务书样题5docx、M1-M2-竞赛任务书样题6docx、M3-竞赛任务书样题1docx、M3-竞赛任务书样题10docx、M3-竞赛任务书样题2docx、M3-竞赛任务书样题3docx、M3-竞赛任务书样题7docx、M3-竞赛任务书样题4docx、M3-竞赛任务书样题5docx、M3-竞赛任务书样题6docx、M3-竞赛任务书样题8docx、M3-竞赛任务书样题9docx、M4-竞赛任务书样题10docx、M4-竞赛任务书样题1docx、M4-竞赛任务书样题5docx、M4-竞赛任务书样题2docx、M4-竞赛任务书样题3docx、M4-竞赛任务书样题4docx、M4-竞赛任务书样题6docx、M4-竞赛任务书样题7docx、M4-竞赛任务书样题8docx、M4-竞赛任务书样题9docx、M4--答案评分标准样题5docx、M4-答案评分标准样题9docx、M4-答案评分标准样题10docx、M4-答案评分标准样题1docx、M4-答案评分标准样题8docx、M4-答案评分标准样题2docx、M4-答案评分标准样题3docx、M4-答案评分标准样题7docx、M4-答案评分标准样题6docx、M4--答案评分标准样题4docx、M3-答案评分标准样题3doc、M3--答案评分标准样题4doc、M3-答案评分标准样题2doc、M3-答案评分标准样题10doc、M3-答案评分标准样题7doc、M3-答案评分标准样题9doc、M3-答案评分标准样题8doc、M3--答案评分标准样题5doc、M3--答案评分标准样题6doc、M3-答案评分标准样题1doc、M5-职业素养样题4docx、M5-职业素养样题6docx、M5-职业素养样题4docx、M5-职业素养样题4docx、M5-职业素养样题5docx、M5-职业素养样题5docx、M5-职业素养样题5docx、M5-职业素养样题6docx、M5-职业素养样题7docx、M5-职业素养样题9docx、M5-职业素养样题9docx、M5-职业素养样题8docx、M5-职业素养样题8docx、M5-职业素养样题8docx、M5-职业素养样题7docx、M5-职业素养样题7docx、M5-职业素养样题6docx、M5-职业素养样题3docx、M5-职业素养样题3docx、M1-M2-答案评分标准样题10docx、M5-职业素养样题3docx、M1-M2-答案评分标准样题3docx、M1-M2-答案评分标准样题6docx、M1-M2-答案评分标准样题7docx、M1-M2-答案评分标准样题8docx、M1-M2-答案评分标准样题9docx、M1-M2--答案评分标准样题5docx、M1-M2-答案评分标准样题1docx、M1-M2-答案评分标准样题2docx、M1-M2-答案评分标准样题4docx、M5-职业素养样题2docx、M5-职业素养样题1docx、M5-职业素养样题1docx、M5-职业素养样题1docx、M5-职业素养样题10docx、M5-职业素养样题10docx、M5-职业素养样题10docx、M5-职业素养样题2docx、M5-职业素养样题2docx、M5-职业素养样题9docx等90份试卷配套教学资源,其中试卷共310页, 欢迎下载使用。

